Diese moderne und neuwertige Doppelhaushälfte befindet sich in ruhiger Feldrandlage und überzeugt mit einer durchdachten Raumaufteilung, hochwertiger Ausstattung sowie einer energieeffizienten Haustechnik. Mit einer Wohnfläche von ca. 140 m² auf einem 479m² großen Grundstück bietet das Haus großzügigen Wohnkomfort für Familien, Paare oder Kapitalanleger.
Im Erdgeschoss erwarten Sie ein Gäste-WC, ein Abstellraum, eine separate Küche sowie ein großzügiges Wohn- und Esszimmer mit bodentiefen Fenstern und Zugang zur sonnigen Terrasse. Der angrenzende Hauswirtschaftsraum mit praktischem Seiteneingang ergänzt das Raumangebot ideal. Die gesamte Etage ist einheitlich und pflegeleicht gefliest.
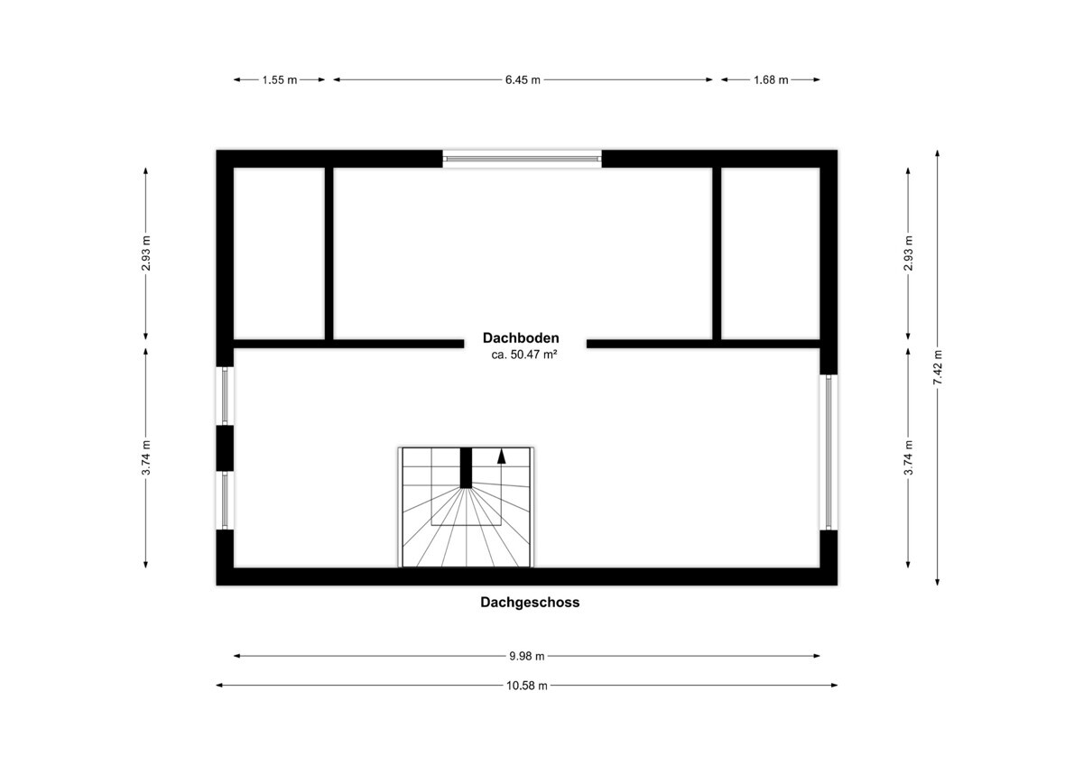
Im Obergeschoss befinden sich drei gut geschnittene Räume, die als Schlaf-, Kinder- oder Arbeitszimmer genutzt werden können. Das moderne Tageslichtbad ist mit einer bodentiefen Dusche, einer Badewanne, WC und Fenster ausgestattet. Das ausgebaute Dachgeschoss mit massiver Betondecke und herrlichem Blick über die angrenzenden Felder bietet zusätzlichen Wohn- oder Arbeitsraum.
Zur hochwertigen technischen Ausstattung zählen eine energieeffiziente Erdwärmepumpe, eine kontrollierte Wohnraumlüftung mit Be- und Entlüftung, Fußbodenheizung in allen Geschossen sowie dreifach verglaste Fenster.
Abgerundet wird das Angebot durch einen großzügigen Garten in Feldlage sowie 2–3 PKW-Außenstellplätze direkt am Haus.
Die Doppelhaushälfte ist aktuell vermietet und bietet somit auch für Kapitalanleger eine attraktive Investitionsmöglichkeit.
Technische Angaben
- ImmoNr
- Ref.-Nr. 671
Kategorie
- Objektart
- Haus
- Objekttyp
- Doppelhaushälfte
- Nutzungsart
- Wohnen
- Vermarktungsart
- Kauf
Geografische Angaben
- PLZ
- 27321
- Ort
- Thedinghausen
- Land
- Deutschland
Flächen
- Wohnfläche
- ca. 142 m²
- Grundstücksgröße
- ca. 479 m²
- Anzahl Zimmer
- 5
- Anzahl Schlafzimmer
- 3
- Anzahl Badezimmer
- 1
- Anzahl sep. WC
- 1
- Anzahl Terrassen
- 1
Ausstattung
Terrasse
- Befeuerung
- Erdwärme
- Etagenzahl
- 3
- Stellplätze
- 2 Freiplätze
Preise
- Kaufpreis
- 378.000,00 €
- Außen-Provision
- 2,98% (inkl. 19% MwSt.) vom beurkundeten Kaufpreis (Käuferprovision)
Beschreibung
Ausstattung
+ Vermietet seit 2016
+ 3-fach verglaste Kunstofffenster (Ug=0,50) mit elekt. Rollläden
+ Erdwärmepumpe mit Erdreichflächenkollektoren (2016)
+ Fußbodenheizung
+ Be- und Entlüftungsanlage
+ Wäscheabwurfschacht
+ Betondecken bis ins Dachgeschoss
+ Glasfaseranschluss
+ SAT-Anschluss
+ Einbauküche mit Siemens-Elektrogeräten
+ Hauswirtschaftsraum mit Seiteneingang
+ Vollbad mit bodentiefer Dusche und zwei Fenstern
+ Gäste-WC im Erdgeschoss
+ Abstellraum im Erdgeschoss
+ 3-fach verglaste Kunstofffenster (Ug=0,50) mit elekt. Rollläden
+ Erdwärmepumpe mit Erdreichflächenkollektoren (2016)
+ Fußbodenheizung
+ Be- und Entlüftungsanlage
+ Wäscheabwurfschacht
+ Betondecken bis ins Dachgeschoss
+ Glasfaseranschluss
+ SAT-Anschluss
+ Einbauküche mit Siemens-Elektrogeräten
+ Hauswirtschaftsraum mit Seiteneingang
+ Vollbad mit bodentiefer Dusche und zwei Fenstern
+ Gäste-WC im Erdgeschoss
+ Abstellraum im Erdgeschoss
Lage
Die angebotene Doppelhaushälfte befindet sich in zentraler Wohnlage von Thedinghausen, einer charmanten Gemeinde im Landkreis Verden mit rund 8.000 Einwohnern. Die Umgebung ist geprägt von einer ruhigen, familienfreundlichen Nachbarschaft mit gepflegten Einfamilien- und Doppelhäusern.
Durch die gute Infrastruktur sind sämtliche Einrichtungen des täglichen Bedarfs schnell erreichbar – darunter Supermärkte (Edeka/Lidl), Bäckereien, Apotheken sowie Ärzte und Banken. Auch Kindergärten, Schulen und Sportvereine befinden sich in der Nähe, was die Lage besonders attraktiv für Familien macht.
Zudem bietet Thedinghausen ein angenehmes Maß an Naherholung: Spazier- und Radwege entlang der Weser sowie die Nähe zu Wiesen, Feldern und kleinen Waldstücken sorgen für eine hohe Lebensqualität im Grünen.
Die verkehrstechnische Anbindung ist ebenfalls überzeugend. Über die nahegelegenen Bundesstraßen ist man in kurzer Zeit in Achim oder Verden, und auch Bremen (ca. 23km) ist mit dem Auto oder öffentlichen Verkehrsmitteln gut erreichbar. Der nächstgelegene Bahnhof ist in Achim, welchen Sie mit dem Bus erreichen können.
Durch die gute Infrastruktur sind sämtliche Einrichtungen des täglichen Bedarfs schnell erreichbar – darunter Supermärkte (Edeka/Lidl), Bäckereien, Apotheken sowie Ärzte und Banken. Auch Kindergärten, Schulen und Sportvereine befinden sich in der Nähe, was die Lage besonders attraktiv für Familien macht.
Zudem bietet Thedinghausen ein angenehmes Maß an Naherholung: Spazier- und Radwege entlang der Weser sowie die Nähe zu Wiesen, Feldern und kleinen Waldstücken sorgen für eine hohe Lebensqualität im Grünen.
Die verkehrstechnische Anbindung ist ebenfalls überzeugend. Über die nahegelegenen Bundesstraßen ist man in kurzer Zeit in Achim oder Verden, und auch Bremen (ca. 23km) ist mit dem Auto oder öffentlichen Verkehrsmitteln gut erreichbar. Der nächstgelegene Bahnhof ist in Achim, welchen Sie mit dem Bus erreichen können.
Sonstige Angaben
Aktuelle Kaltmiete: 950,00 € (keine Mieterhöhung seit Einzug)
Bruttomietrendite: 3,02%
Faktor: ca. 33
Vermietet seit: 01.06.2016
Bei der aktuellen Miete von 6,79€/qm wird eine monatliche Kaltmiete von ca. 950€ (711.400€/Jahr) erzielt werden, was einer Bruttomietrendite von ca. 3,02% entspricht. So kann ein Faktor von ca. 33 erzielt werden.
Wir weisen darauf hin, dass die von uns weitergegebenen Objektinformationen, Unterlagen, Pläne etc. vom Auftraggeber stammen. Eine Haftung für die Richtigkeit oder Vollständigkeit der Angaben übernehmen wir nicht. Es obliegt daher unseren Kunden, die darin enthaltenen Objektinformationen und Angaben auf ihre Richtigkeit hin zu überprüfen. Alle Immobilienangebote sind freibleibend und vorbehaltlich Irrtümer, Zwischenverkauf- und Vermietung oder sonstiger Zwischenverwertung.
Geldwäsche: Die Rutz Immobilien GmbH ist als Immobilienmaklerunternehmen gemäß § 2 Abs. 1 Nr. 14 und § 11 Abs. 1, 2 des Geldwäschegesetzes (GwG) verpflichtet, die Identität ihrer Vertragspartner zu überprüfen, sobald eine Geschäftsbeziehung entsteht oder ernsthaftes Interesse an einem Immobilienkaufvertrag besteht.
Dafür erfassen wir nach § 11 Abs. 4 GwG die relevanten Daten Ihres Personalausweises (bei natürlichen Personen), beispielsweise durch eine Kopie. Handelt es sich um eine juristische Person, ist ein Handelsregisterauszug erforderlich, aus dem der wirtschaftlich Berechtigte hervorgeht.
Das Geldwäschegesetz verpflichtet uns, diese Unterlagen für einen Zeitraum von fünf Jahren aufzubewahren. Zudem sind Sie als unser Vertragspartner gemäß § 11 Abs. 6 GwG zur Mitwirkung verpflichtet.
Bruttomietrendite: 3,02%
Faktor: ca. 33
Vermietet seit: 01.06.2016
Bei der aktuellen Miete von 6,79€/qm wird eine monatliche Kaltmiete von ca. 950€ (711.400€/Jahr) erzielt werden, was einer Bruttomietrendite von ca. 3,02% entspricht. So kann ein Faktor von ca. 33 erzielt werden.
Wir weisen darauf hin, dass die von uns weitergegebenen Objektinformationen, Unterlagen, Pläne etc. vom Auftraggeber stammen. Eine Haftung für die Richtigkeit oder Vollständigkeit der Angaben übernehmen wir nicht. Es obliegt daher unseren Kunden, die darin enthaltenen Objektinformationen und Angaben auf ihre Richtigkeit hin zu überprüfen. Alle Immobilienangebote sind freibleibend und vorbehaltlich Irrtümer, Zwischenverkauf- und Vermietung oder sonstiger Zwischenverwertung.
Geldwäsche: Die Rutz Immobilien GmbH ist als Immobilienmaklerunternehmen gemäß § 2 Abs. 1 Nr. 14 und § 11 Abs. 1, 2 des Geldwäschegesetzes (GwG) verpflichtet, die Identität ihrer Vertragspartner zu überprüfen, sobald eine Geschäftsbeziehung entsteht oder ernsthaftes Interesse an einem Immobilienkaufvertrag besteht.
Dafür erfassen wir nach § 11 Abs. 4 GwG die relevanten Daten Ihres Personalausweises (bei natürlichen Personen), beispielsweise durch eine Kopie. Handelt es sich um eine juristische Person, ist ein Handelsregisterauszug erforderlich, aus dem der wirtschaftlich Berechtigte hervorgeht.
Das Geldwäschegesetz verpflichtet uns, diese Unterlagen für einen Zeitraum von fünf Jahren aufzubewahren. Zudem sind Sie als unser Vertragspartner gemäß § 11 Abs. 6 GwG zur Mitwirkung verpflichtet.
Energieausweis
A+
< 30
A
30 – 50
B
50 – 75
C
75 – 100
D
100 – 130
E
130 – 160
F
160 – 200
G
200 – 250
H
> 250
- Baujahr lt. Energieausweis
- 2016
- Endenergiebedarf
- 13,7 kWh/(m²a)
- Energieausweis
- Bedarfsausweis
- Energieausweis gültig bis
- 08.07.2026
- Energieeffizienzklasse
- A+
- wesentlicher Energieträger
- Erdwärme
Ihr Ansprechpartner
Herr Jan Lippert
Rutz Immobilien GmbH
- Tel.:
- 04221-780480
- E-Mail:
- verkauf@immobilien-rutz.de
Schildstr. 8
27753 Delmenhorst